Retour à ma recherche

Appartement | Herstal

Rue Haute Marexhe, 126, 4040, Herstal

159.000 €

à vendre

1

1

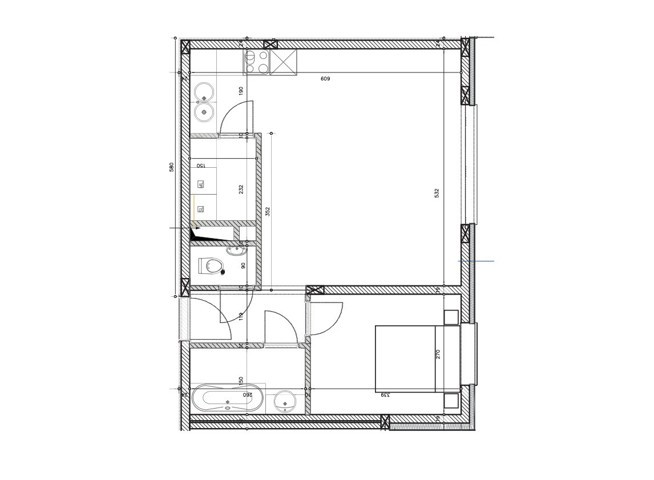
55 m²

L'agence START-IMMO a le plaisir de vous proposer ce bel appartement libre d’occupant à Herstal (Rue Haute Marexhe). Appartement pratique et confortable de 55 m² situé au rez de la Résidence "Aurora". Il est composé d'un Hall d'entrée avec wc séparé, d'un séjour très lumineux ouvert sur la cuisine équipée complète, d'une buanderie, d'une salle de bains et d'une chambre à coucher. L'appartement dispose d'une place de parking privé extérieure et d'une cave. Compteurs eau et électrique individuels. Provision pour les charges de chauffage, frais communs et frais privatifs (118,89 €/mois sur base du dernier décompte des charges). Possibilité de bénéficier des droits d'enregistrements réduits de 3%* (*art 44bis du CDD). La Résidence Aurora répond aux critères stricts du concept Thermo Efficace. Ces techniques de constructions comprennent un système de chauffage aux pellets, un groupe de ventilation double flux individuel. Vous bénéficierez donc de consommations énergétiques faibles qui garantiront de belles économies. Situé à proximité de toutes commodités, ce bien répondra à toutes vos exigences. Contactez nous dès maintenant pour organiser une visite ou pour toute information complémentaire. Par téléphone au 0475 20 13 90 et 04 287 12 90 ou par mail à info@start-immo.be.

Référence : 7651286
État : Excellent état
R.C. : 718 €
Garages : non
Parkings : non
Jardin : non
Disponible : à l'acte

Toutes les caractéristiques

Code postal : 4040
État : Excellent état
Revenu cadastral : 718 €
Régime TVA : non
Chambres : 1
Superficie : 55 m²
Salles d'eau : 1
Garages : non
Caves : oui
Parkings : non
Jardin : non
Terrasse : non
Meublé : non
Châssis : pvc
Double vitrage : oui
PEB E Spec : 142 KWh/m³/an
PEB Classe : PEB Class
PEB E Totale : 7300 KWh/an
PEB Code Unique : 20180709504050
Disponible : à l'acte

Do Not Track détecté