Retour à ma recherche

Terrain | Neupré

Chemin Madame, 11, 4121, Neupré

139.000 €

à vendre

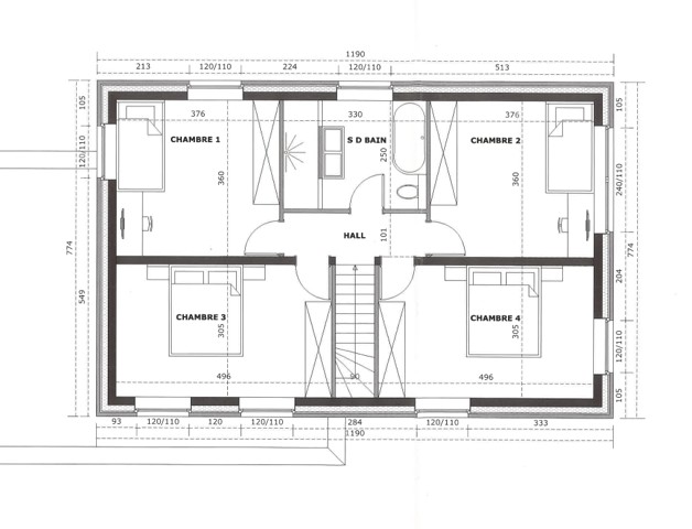
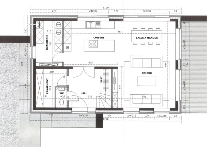
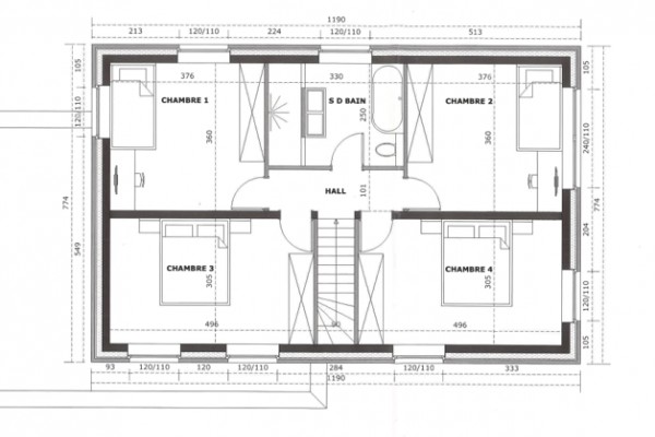
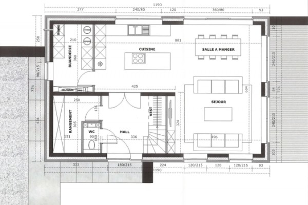
START-IMMO a le plaisir de vous proposer un projet immobilier rare et exclusif situé dans l’un des quartiers les plus prisés et recherchés de Neupré, au Chemin Madame 11. Il ne s’agit pas simplement d’un terrain à vendre, mais bien d’un véritable projet de construction prêt à démarrer. Un permis de bâtir pour une maison 4 façades est déjà octroyé sur une parcelle constructible d’environ 600 m², vous offrant un avantage majeur : gain de temps, sécurité administrative et sérénité du projet. La propriété développe une superficie totale de 1.944 m², offrant un cadre verdoyant, calme et résidentiel, dans un environnement particulièrement recherché, où les opportunités sont extrêmement rares sur le marché. ✨ Les atouts du projet : 📍 Localisation premium à Neupré 🏗️ Permis de bâtir déjà accordé 🏠 Projet de maison 4 façades 🌿 Environnement résidentiel et verdoyant 📐 Terrain total de 1.944 m² 🔹 Parcelle constructible ± 600 m² 🧭 Quartier calme, discret et très recherché Ce bien s’adresse à une clientèle souhaitant concrétiser un projet de construction sans les délais, incertitudes et contraintes administratives habituelles, dans un cadre de vie exceptionnel. Un projet rare, exclusif et à forte valeur patrimoniale, idéal pour une famille ou un projet résidentiel haut de gamme. 📞 Informations, plans et permis disponibles sur demande. Contactez dès aujourd’hui START-IMMO au 0479 28 96 67 / 0475 20 13 90 ou par mail info@start-immo.be pour une visite sur site.

Référence : 7546479
Superficie : 1.944 m²

Do Not Track détecté