Retour à ma recherche

Appartement | Herstal

Rue Haute Marexhe, 126, 4040, Herstal

189.000 €

option v.

2

1

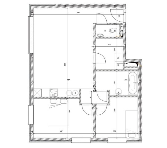
77 m²

L'agence START-IMMO a le plaisir de vous proposer ce splendide appartement 2 chambres à Herstal (Rue Haute Marexhe). Appartement pratique et confortable de 77 m² situé au premier étage de la Résidence "Aurora". Il est composé d'un Hall d'entrée avec wc séparé, d'un séjour très lumineux avec vue sur les espaces verts et ouvert sur la cuisine équipée complète, d'une buanderie, d'une salle de bains et de 2 chambres à coucher. L'appartement dispose d'une place de parking privé extérieure et d'une cave. Compteurs individuels pour l'eau et l'électricité. Provision pour les charges de chauffage, frais communs et frais privatifs (171,49 €/mois sur base du dernier décompte des charges). La Résidence Aurora répond aux critères stricts du concept Thermo Efficace. Ces techniques de constructions comprennent un système de chauffage aux pellets, un groupe de ventilation double flux individuel. Vous bénéficierez donc de consommations énergétiques faibles qui garantiront de belles économies. Situé à proximité de toutes commodités, ce bien répondra à toutes vos exigences. Contactez nous dès maintenant pour organiser une visite et vous laissez séduire par ce bien ! Vous désirez venir visiter ou avoir des infos supplémentaires ?. Nb: ce logement est actuellement occupé par un locataire. N'attendez plus et contactez START-IMMO au 0475/20.13.90 - 0479/28.96.67 ou au 04/287.12.90 ou via l'adresse info@start-immo.be.

Référence : 6798447
État : Excellent état
R.C. : 909 €
Garages : non
Parkings : non
Jardin : non
Disponible : à convenir

Toutes les caractéristiques

Code postal : 4040
État : Excellent état
Revenu cadastral : 909 €
Régime TVA : non
Chambres : 2
Superficie : 77 m²
Salles d'eau : 1
Garages : non
Parkings : non
Jardin : non
Terrasse : non
Étage : 1
Façades : 2
Meublé : non
Châssis : pvc
Double vitrage : oui
PEB E Spec : 86 KWh/m³/an
PEB Classe : PEB Class
PEB E Totale : 6576 KWh/an
PEB Code Unique : 20180709506195
Disponible : à convenir

Do Not Track détecté