Retour à ma recherche

Appartement | Fléron

Rue de Magnée, 24, 4620, Fléron

200.000 €

vendu

2

1

1

110 m²

Start-immo vous propose cette belle opportunité dans le centre de Fléron offrant un accès direct au Ravel et à toutes les commodités. Cette nouvelle résidence vous propose 6 superbes appartements neufs. Chaque bien se compose de 2 chambres, d'une salle de bain, d'un salon - salle à manger, wc, terrasse/balcon. Il reste uniquement la cuisine à installer. Les appartements du rez-de-chaussée disposent d'un jardin privatif. Un emplacement de parking ainsi qu'une cave privative sont compris avec chaque logement. Faire offre à partir de 200.000 € ( sous réserve d'acceptation du propriétaire ) Idéal pour l'habitation mais aussi pour l'investissement ! Coûts très faibles pour la gestion de la copropriété. L'eau, gaz, chauffage et électricité sont privatifs, vous maitrisez vos consommations sans décompteur et sans calorimètre. A visiter sans tarder, déjà plus qu'un rez-de-chaussée disponible ! Infos au 04 287 12 90 ou via info@start-immo.be

Référence : 4514891
Garages : non
Parkings : 1
Jardin : non
Disponible : à l'acte

Description du bien

Start-immo vous propose cette belle opportunité dans le centre de Fléron offrant un accès direct au Ravel et à toutes les commodités.
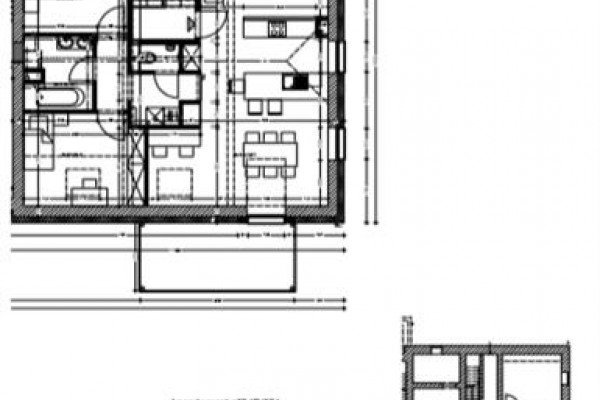
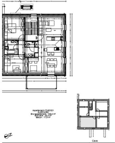
Cette nouvelle résidence vous propose 6 superbes appartements neufs. Chaque bien se compose de 2 chambres, d'une salle de bain, d'un salon - salle à manger, wc, terrasse/balcon. Il reste uniquement la cuisine à installer. Les appartements du rez-de-chaussée disposent d'un jardin privatif. Un emplacement de parking ainsi qu'une cave privative sont compris avec chaque logement.
Idéal pour l'habitation mais aussi pour l'investissement !
Coûts très faibles pour la gestion de la copropriété.
L'eau, gaz, chauffage et électricité sont privatifs, vous maitrisez vos consommations sans décompteur et sans calorimètre.
A visiter sans tarder, déjà plus qu'un rez-de-chaussée disponible !
Infos au 04 287 12 90 ou via info@start-immo.be

Toutes les caractéristiques

Code postal : 4620
Régime TVA : oui
Chambres : 2
Superficie : 110 m²
Salles d'eau : 1
Garages : non
Parkings : 1
Jardin : non
Terrasse : oui
Étage : 2
Meublé : non
Châssis : pvc
Double vitrage : oui
PEB E Spec : 154 KWh/m³/an
PEB Classe : PEB Class
PEB E Totale : 14201 KWh/an
PEB Code Unique : 20200318008569
Disponible : à l'acte

Do Not Track détecté